การมีระบบผลิตน้ำดื่มที่ได้มาตรฐานคือพื้นฐานสำคัญของธุรกิจน้ำดื่มในยุคปัจจุบัน บริษัท ทีทีวอเตอร์เทค จำกัด พร้อมให้บริการ รับติดตั้งโรงงานผลิตน้ำ RO 6000 ลิตรต่อวัน ครบวงจร เพื่อให้ลูกค้าสามารถผลิตน้ำดื่มได้อย่างมั่นใจตามมาตรฐาน อย. ด้วยเทคโนโลยีระบบกรองน้ำแบบ Reverse Osmosis (RO) ที่มีความแม่นยำสูง สามารถกรองน้ำสะอาดได้ตลอด 24 ชั่วโมง
ระบบนี้ออกแบบมาเพื่อรองรับการผลิตน้ำดื่มขนาดกลางถึงขนาดใหญ่ ใช้งานได้ต่อเนื่อง ประหยัดพลังงาน และบำรุงรักษาง่าย ช่วยลดต้นทุนการผลิตในระยะยาว เหมาะสำหรับผู้ประกอบการที่ต้องการเริ่มต้นหรือขยายธุรกิจน้ำดื่มบรรจุขวด
ระบบกรองน้ำ RO ทำงานโดยการกรองน้ำผ่านเยื่อเมมเบรนที่มีความละเอียดระดับไมครอน สามารถกำจัดสารปนเปื้อน โลหะหนัก สารเคมีตกค้าง และเชื้อโรคต่าง ๆ ได้อย่างมีประสิทธิภาพ ทำให้น้ำสะอาดใสและมีคุณภาพเหมาะสมสำหรับบรรจุจำหน่าย
ระบบนี้สามารถทำงานต่อเนื่องได้ตลอด 24 ชั่วโมง พร้อมชุดอุปกรณ์ครบชุดตั้งแต่ระบบกรองน้ำดิบไปจนถึงเครื่องบรรจุขวด ทำให้ผู้ประกอบการสามารถเปิดดำเนินกิจการได้ทันทีภายหลังการติดตั้ง
กำลังการผลิตสูง เหมาะสำหรับธุรกิจเชิงพาณิชย์
ระบบกรองมาตรฐานอุตสาหกรรม ผ่าน อย. ได้ง่าย
ทำงานอัตโนมัติ ลดต้นทุนแรงงาน
บำรุงรักษาง่าย อะไหล่พร้อมบริการ
รองรับการผลิตได้ตลอด 24 ชั่วโมง
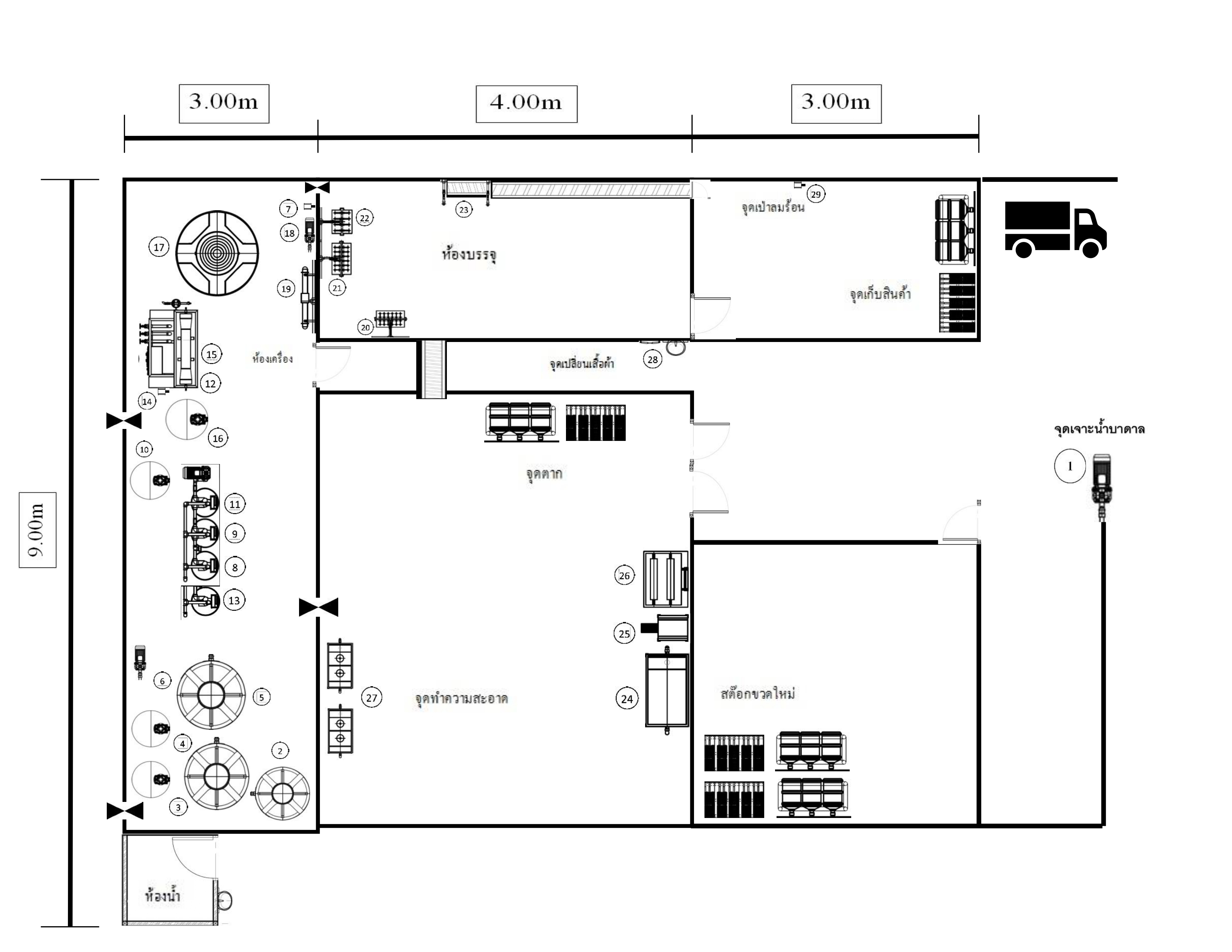
ระบบนี้มาพร้อมชุดอุปกรณ์มาตรฐานคุณภาพสูง ครบวงจร ตั้งแต่การกรองน้ำดิบไปจนถึงการกรองละเอียดเพื่อผลิตน้ำดื่มคุณภาพ
| รายการอุปกรณ์ | จำนวน | คุณสมบัติ |
|---|---|---|
| Tank น้ำดิบขนาด 2000 ลิตร | 2 ถัง | ใช้สำหรับเก็บน้ำดิบเพื่อเตรียมเข้าสู่ระบบกรอง |
| ปั๊มเคมีชุดคลอรีน พร้อมถัง PE 100 ลิตร | 1 ชุด | ทำลายและลดปริมาณจุลินทรีย์ รวมทั้งเชื้อโรคต่างๆ |
| ปั๊มจ่ายน้ำเข้ายี่ห้อ Vane พร้อมหัวควบคุมออโต้ | 1 ตัว | ควบคุมแรงดันน้ำเข้าสู่ระบบกรอง |
| ถังกรองสแตนเลส ø 12 นิ้ว (แอนทราไซด์) | 1 ชุด | กรองตะกอนและโคลน สารแขวนลอย และธาตุเหล็ก |
| ถังกรองสแตนเลส ø 12 นิ้ว (คาร์บอน) | 1 ชุด | กำจัดกลิ่น สี คลอรีน และสารอินทรีย์ |
| ถังกรองเรซิ่น ø 12 นิ้ว | 1 ชุด | ลดความกระด้างของน้ำและหินปูน |
| ชุดดักตะกอน Big Blue | 1 ชุด | ดักจับตะกอนหยาบก่อนเข้าสู่ระบบ RO |
| ไส้กรอง PP 5 Micron | - | กรองละเอียดก่อนเข้าเมมเบรน RO |
| เกลือสำหรับล้างเรซิ่น | - | ใช้สำหรับล้างสารกรองเรซิ่นเพื่อประสิทธิภาพสูงสุด |
อุปกรณ์ทั้งหมดผลิตจากวัสดุคุณภาพสูง ทนทาน ดูแลรักษาง่าย เหมาะกับการใช้งานระยะยาว
นอกจากระบบกรองน้ำ RO แล้ว เรายังมีเครื่องล้างขวดและเครื่องบรรจุน้ำแบบครบชุด เพื่อให้กระบวนการผลิตน้ำดื่มเป็นไปอย่างต่อเนื่องและถูกสุขลักษณะ
เครื่องล้างขวดภายนอกและภายใน
เครื่องบรรจุน้ำระบบหัวจ่ายหลายหัว
เครื่องปิดฝาอัตโนมัติ
โครงสร้างสแตนเลสคุณภาพสูง
ระบบบรรจุนี้ช่วยลดแรงงาน เพิ่มความรวดเร็วในการผลิต และรักษาความสะอาดได้ตามมาตรฐานโรงงานผลิตน้ำดื่ม
บริษัท ทีทีวอเตอร์เทค จำกัด มีทีมงานมืออาชีพที่มีประสบการณ์ในการติดตั้งระบบน้ำ RO มาหลายโครงการ เราดำเนินการตั้งแต่การสำรวจพื้นที่ วางระบบท่อ เดินไฟ ติดตั้งอุปกรณ์ และทดสอบระบบให้พร้อมใช้งาน
ลูกค้าจะได้รับการสาธิตการใช้งานจริง พร้อมคู่มือการดูแลระบบ และบริการหลังการขายที่ครบถ้วน เพื่อให้ระบบสามารถทำงานได้อย่างมีประสิทธิภาพในระยะยาว
ระบบผลิตน้ำดื่มของเราผ่านมาตรฐาน อย. ได้ง่าย เรามีทีมงานที่เชี่ยวชาญด้านเอกสารและกระบวนการยื่นขอเลขหมาย อย. พร้อมให้คำปรึกษาและดำเนินการแทนลูกค้าจนครบขั้นตอน เพื่อให้คุณเปิดดำเนินการได้อย่างถูกต้องตามกฎหมาย
ผู้ที่ต้องการเปิดโรงงานน้ำดื่มขนาดกลาง
ผู้ประกอบการที่ต้องการเพิ่มกำลังการผลิต
โรงแรม รีสอร์ต และองค์กรที่ต้องการน้ำดื่มสะอาด
โครงการชุมชน หน่วยงานรัฐและเอกชน
มีประสบการณ์ด้านระบบน้ำดื่มและงานติดตั้งจริง
ใช้อุปกรณ์คุณภาพสูง มาตรฐานอุตสาหกรรม
มีทีมงานบริการหลังการขาย
บริการครบวงจรตั้งแต่ติดตั้งถึงขอเลขหมาย อย.
ราคายุติธรรม มีโปรโมชั่นพิเศษ
เชิญติดต่อเราเพื่อข้อมูลเพิ่มเติม รายละเอียดสินค้า ราคาพิเศษ และบริการติดตั้งครบวงจร
บริษัท ทีทีวอเตอร์เทค จำกัด
41/1 นิมิตรใหม่ 40 ซอยอยู่สบาย แขวงคลองสามวาตะวันออก เขตคลองสามวา กรุงเทพมหานคร
เปิดให้บริการทุกวัน 08.00–17.00 น. (หยุดวันอาทิตย์)
โทรศัพท์: 02-101-4412, 080-477-4646
การลงทุนใน ระบบผลิตน้ำ RO 6000 ลิตรต่อวัน คือก้าวสำคัญของธุรกิจน้ำดื่มที่จะช่วยเพิ่มประสิทธิภาพการผลิต ลดต้นทุน และสร้างความมั่นใจในคุณภาพน้ำ บริษัท ทีทีวอเตอร์เทค จำกัด พร้อมดูแลคุณตั้งแต่ต้นจนจบ ทั้งระบบกรอง เครื่องบรรจุ เครื่องล้าง และบริการขอเลขหมาย อย. เพื่อให้คุณเริ่มต้นธุรกิจได้อย่างมั่นใจ
📞 ติดต่อเรา วันนี้เพื่อรับข้อเสนอราคาพิเศษ และนัดหมายสำรวจพื้นที่ติดตั้งฟรี!
รับติดตั้งโรงงานผลิตน้ำดื่ม